

PZ41H,PZ941H排渣閥
PZ41H排渣閥_電動排渣閥_耐磨排渣閥_高溫排渣閥_鑄鋼排渣閥適用于公稱壓力PN1.6~6.4MPa,工作溫度0~350℃的火力電站水利系統及水利工程的灰漿排放系統管路上,切斷或接通管路中灰水混合物,渣水混合物。
| 產品名稱: | 排渣閥 | 產品型號: | PZ41H、PZ941H |
| 公稱通徑: | DN50~DN500 | 結構形式: | 閘板式 |
| 公稱壓力: | 1.6Mpa~6.4Mpa | 連接方式: | 法蘭 |
| 適用溫度: | -20ºC~+150ºC~425ºC~550ºC | 驅動方式: | 手動、傘齒輪、電動、氣動、液動 |
| 閥體材質: | WCB、鑄鋼、碳鋼、不銹鋼、鉻鉬鋼 | 制造標準: | 國標GB、德國DIN、美國API、ANSI |
| 適用介質: | 水、油、蒸汽、灰渣、煤渣、礦漿 | 生產廠家: | 上海凱利科閥門有限公司 |
| 設計標準 | 結構長度 | 壓力-溫度 | 連接法蘭 | 試驗和檢驗 | 產品標識 |
|
GB/12234 GB/3595 |
GB/12221 |
GB/9131 JB/T74 HG/20604 |
JB/T74-90 GB/9113 HG/20592-20635 |
JB/T9092-1999 GB/13927 |
JB/T7928 GB/T12220 |
| 配管法蘭 | 公稱壓力 | 法蘭密封面 | 型號 | |
|
GB/9113 HG/20592-20635 JB/T74 |
1.6 | 凸面 | PZ41H-16C | PZ41TC-16C |
| 2.5 | PZ41H-25C | PZ41TC-25C | ||
| 4.0 | 凹凸面 | PZ41H-40C | PZ41TC-40C | |
| 6.4 | PZ41H-64C | PZ42TC-64C | ||
| 錐齒輪傳動排渣閥 | 在型號“Z”后插入“5”,示例PZ541H-16C | |||
| 電動排渣閥 | 在型號“Z”后插入“9”,示例PZ941H-16C | |||
| 型號 | 公稱壓力 | 試驗壓力 | 適用溫度 | 適用介質 | |
| 強度試驗 | 密封試驗 | ||||
| 1.6 | 2.4 | 1.8 | 22.0 | ≤350 |
灰水混合物、渣水比1:6 最大粒度<50mm |
| 2.5 | 3.8 | 2.8 | 27.5 | ||
| 4.0 | 6.0 | 4.4 | 35.2 | ||
| 6.4 | 9.6 | 7.1 | 22.0 | ||
| 閥體 | 閥蓋 | 支架 | 閥板 | 閥桿 | 閥座 | 密封環 | 填料 | 閥桿螺母 | 適用介質 | 適用溫度 |
| WCB | WCB | WCB | WCB+耐磨合金WCB+陶瓷 | 2Cr13 | WCB+耐磨合金WCB+陶瓷 | 增強柔性石墨 | ZCuAI10Fe3 | 煤、灰渣、泥漿 | 350 | |
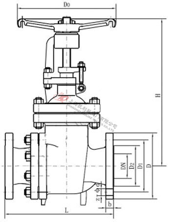
| DN | L | D | D1 | D2 | b | z×d | f | H | H1 |
| 50 | 250 | 165 | 102 | 99 | 20 | 4×18 | 3 | 420 | 335 |
| 80 | 280 | 200 | 133 | 132 | 22 | 8×18 | 3 | 615 | 510 |
| 100 | 300 | 220 | 180 | 158 | 24 | 8×18 | 3 | 805 | 685 |
| 150 | 350 | 285 | 240 | 212 | 28 | 8×22 | 3 | 952 | 790 |
| 200 | 400 | 340 | 295 | 268 | 30 | 12×22 | 3 | 1085 | 885 |
| 250 | 450 | 405 | 355 | 320 | 32 | 12×26 | 3 | 1235 | 1015 |
| 300 | 500 | 460 | 410 | 370 | 34 | 12×26 | 4 | 1450 | 1190 |
| 350 | 550 | 520 | 470 | 430 | 38 | 16×26 | 4 | 1640 | 1350 |
| 400 | 600 | 580 | 525 | 482 | 40 | 16×30 | 4 | 1798 | 1460 |
| 450 | 650 | 640 | 585 | 532 | 44 | 21×30 | 4 | 1980 | 1620 |
| 500 | 700 | 715 | 650 | 585 | 46 | 20×33 | 4 | 2190 | 1800 |
| DN | L | D | D1 | D2 | b | z×d | f | H | H1 |
| 50 | 250 | 165 | 125 | 88 | 20 | 4×18 | 3 | 444 | 340 |
| 80 | 310 | 200 | 160 | 121 | 22 | 8×18 | 3 | 636 | 508 |
| 100 | 350 | 235 | 190 | 150 | 24 | 8×22 | 3.5 | 930 | 680 |
| 150 | 450 | 300 | 250 | 204 | 30 | 8×26 | 3.5 | 984 | 800 |
| 200 | 550 | 375 | 320 | 260 | 38 | 12×30 | 3.5 | 1094 | 875 |
| 250 | 650 | 450 | 382 | 313 | 42 | 12×33 | 3.5 | 1270 | 1010 |
| 300 | 750 | 515 | 450 | 364 | 46 | 16×33 | 3.5 | 1470 | 1180 |
| 350 | 850 | 580 | 510 | 422 | 52 | 16×36 | 4 | 1555 | 1245 |
| 400 | 950 | 660 | 585 | 474 | 58 | 16×39 | 4 | 1650 | 1280 |
| 450 | 4050 | 685 | 610 | 524 | 60 | 20×39 | 4 | 1817 | 1415 |
| 500 | 1150 | 755 | 670 | 576 | 62 | 20×42 | 4 | 1990 | 1560 |
| DN | L | D | D1 | D2 | b | z×d | f | H | H1 |
| 50 | 250 | 180 | 135 | 88 | 26 | 4×22 | 3 | 444 | 340 |
| 80 | 310 | 215 | 170 | 121 | 30 | 8×22 | 3 | 636 | 508 |
| 100 | 350 | 250 | 200 | 150 | 32 | 8×26 | 3.5 | 830 | 680 |
| 150 | 450 | 345 | 280 | 204 | 38 | 8×33 | 3.5 | 984 | 800 |
| 200 | 550 | 415 | 345 | 260 | 44 | 12×36 | 3.5 | 1094 | 875 |
| 250 | 650 | 470 | 400 | 212 | 48 | 12×36 | 3.5 | 1270 | 1010 |
| 300 | 750 | 530 | 460 | 364 | 54 | 16×36 | 3.5 | 1470 | 1180 |
| 350 | 850 | 600 | 525 | 422 | 60 | 16×39 | 4 | 1555 | - |
| 400 | 950 | 670 | 585 | 474 | 66 | 16×42 | 4 | 1650 | 1280 |
| 450 | 1050 | 715 | 630 | 524 | 70 | 20×42 | 4 | 1817 | 1415 |
| 500 | 1150 | 800 | 705 | 476 | 76 | 20×48 | 4 | 1990 | 1560 |
聲明:【PZ41H,PZ941H排渣閥】規格型號、結構尺寸由上海凱利科閥門有限公司提供,如何選擇適用的PZ41H,PZ941H排渣閥產品,使之在工藝控制中安全可靠、經濟適用,可致電我司銷售部門及技術部門,我們將在最短的時間內為您解答! |